Properties 20180 of 27602 results« Previous property   Next property »

11 Columbia Avenue Unit C7, Hartsdale, NY, 10530 $134,900

Coop For Sale 1 Beds , 1 Full Bath , 800 SqFt 

Property Picture
1 of 26
 
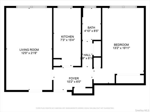
Entry Courtyard Courtyard Lobby Lobby Lobby Entry Other Living Room Living Room Living Room Other Kitchen Kitchen Kitchen Kitchen Other Other Bedroom Bedroom Bedroom Bathroom Laundry Front of Structure Community Floor Plan
 

Details ML#: 889802  

  • Style: Garden
  • Year Built: 1928
  • Status:Active

Description

This charming one-bedroom, one-bathroom cooperative apartment offers a unique opportunity to bring your personal touch and style to a beautifully maintained building. C7 is located on the third floor is ample in size and faces the quiet residental neighborhood of Hartsdale. Step inside to the foyer that opens up into a spacious living and dining area with classic hardwood floors, which lend a warm and inviting ambiance throughout the home. The kitchen features a cozy breakfast nook. The bedroom is comfortably sized and includes plenty of closet space that offers convenient storage solutions.Take advantage of the common outdoor space, ideal for enjoying sunny afternoons, and the convenience of laundry facilities within the building. Street parking is available as well as a nearby municipal lot, and the property is conveniently situated near shopping and dining options, as well as easy access to transportation routes like the Metro-North train station and major highways. This unit welcomes someone with a creative eye to renovate and make it your own offering a fantastic opportunity to embrace comfortable and convenient living in Hartsdale.For more information, please visit the listing on Compass.

More Property Details

Animals Policy: No

Room Information

Bedroom: 1   Full Bath: 1   Other: 1  

Property Features

Approx. Int. Sq. Ft.: 800.00  

Appliances & Utilities

Heat: Baseboard   A/C: Wall/Window Unit(s)   Water: Public   Sewer: Public Sewer  

Local Area Information

School District: Highview School  

Listing Information provided courtesy of Compass Greater NY, LLC  914-341-1561
Inquire About This Property

(*) - Required fields

  1. Presented by

    Gold Coast Homes & Estates
    • Gold Coast Homes & Estates
    • Licensed Real Estate Broker
    • (631) 283-1000
    •   Contact Us
OneKey™ MLSThe source of the displayed data is either the property owner or public record provided by non-governmental third parties. It is believed to be reliable but not guaranteed. Information Copyright 2020, OneKey™ MLS
© 2025 Gold Coast Homes & Estates. All rights reserved | Login | DMCA Notice | Search Engine powered by eRealtyMedia.com