Properties 21611 of 27256 results« Previous property   Next property »

71 Malcolm X Boulevard, Brooklyn, NY, 11221 $4,975

Mixed Use Commercial  

Property Picture
1 of 20
 
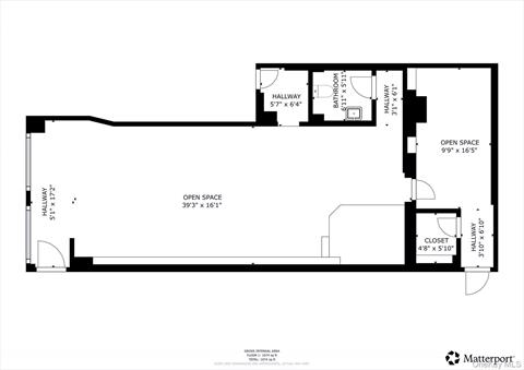
Lobby Other Other Other Other Other Other Other Other Other Other Other Other Other Bathroom Bathroom Front of Structure Entry Other Floor Plan
 

Details ML#: 939404  

  • Sale or Rent:Rent
  • Year Built: 1931
  • Taxes: $9,572
  • Status:Active

Description

Discover a prime commercial lease opportunity at 71 Malcolm X Boulevard in the heart of Bedford-Stuyvesant, Brooklyn. This ground-floor space totaling approximately 1, 075 SQ FT, ideal for medical or professional use, sits within a classic three-story mixed-use building built in 1931, offering strong street visibility, excellent frontage, and a location that captures the steady flow of both neighborhood residents and visitors. Surrounded by a growing mix of cafes, boutiques, and service-oriented businesses, this storefront offers the perfect setting for a brand or business looking to establish itself in one of Brooklyn’s most dynamic corridors.The property sits on a 25 x 100 foot lot with approximately 5, 000 square feet of total building area, zoned for mixed commercial and residential use. The commercial space features a wide glass storefront that draws in natural light and offers direct exposure along Malcolm X Boulevard—a street known for its growing retail activity and community-focused energy. The interior layout is flexible and can be customized to suit a variety of business types, from a retail boutique or neighborhood cafe; to a creative office, wellness studio, or showroom.Located just minutes from the J, Z, and M trains at Kosciuszko Street, Myrtle-Broadway, and Gates Avenue, this address provides easy access for both customers and staff. The area boasts a Walk Score of 95 and a Transit Score of 94, highlighting its pedestrian-friendly streets and convenient public transportation options. Within a one-mile radius, more than 280, 000 residents contribute to a vibrant local economy, making it a strong foundation for a new or expanding business.This space offers not just visibility but a sense of place—surrounded by the historic charm and cultural heartbeat that define Bedford-Stuyvesant. The landlord is open to flexible lease terms and build-out discussions to accommodate the right tenant. For more information, floor plans, or to schedule a private showing, contact us today to explore the opportunity at 71 Malcolm X Boulevard, where Brooklyn character meets business potential.

More Property Details

Property Features

Lot Size: 0.0574   Lot Sq Ft: 2500  

Appliances & Utilities

Heat: Electric   A/C: Ductless   Water: Public   Sewer: Public Sewer  

Financial

Taxes: $9,572  

Listing Information provided courtesy of eXp Realty  888-276-0630
Inquire About This Property

(*) - Required fields

  1. Presented by

    Gold Coast Homes & Estates
    • Gold Coast Homes & Estates
    • Licensed Real Estate Broker
    • (631) 283-1000
    •   Contact Us
OneKey™ MLSThe source of the displayed data is either the property owner or public record provided by non-governmental third parties. It is believed to be reliable but not guaranteed. Information Copyright 2020, OneKey™ MLS
© 2025 Gold Coast Homes & Estates. All rights reserved | Login | DMCA Notice | Search Engine powered by eRealtyMedia.com