Properties 22664 of 28252 results« Previous property   Next property »

14 Glenn Drive, Woodbury, NY, 11797 $6,500

Single Family For Rent 4 Beds , 3 Full Bath , 1568 SqFt 

Property Picture
1 of 37
 
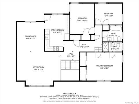
Front of Structure Front of Structure Front of Structure Entry Other Other Other Other Other Other Dining Area Dining Area Other Kitchen Kitchen Kitchen Kitchen Bedroom Other Bathroom Other Other Bathroom Living Room Living Room Bedroom Bathroom Laundry Deck Deck Yard Yard Back of Structure Back of Structure Floor Plan Floor Plan Floor Plan
 

Details ML#: 910199  

  • Style: Hi Ranch
  • Year Built: 1959
  • Status:Active

Description

Located mid-block in the Syosset School District, this immaculate, bright and spacious home offers 4 bedrooms, 3 full bathrooms, and a comfortable, functional layout perfect for everyday living.Enjoy gas heating and cooking, a sun-filled interior, a convenient mudroom and foyer, and well-proportioned rooms throughout. The main level features a welcoming living room with lots of natural light and hardwood floors, a large dining area, and a well-appointed kitchen. Each bedroom provides generous closet space. Additional highlights include:• Attached 2 car garage for convenient parking or storage• basement with laundry• Private backyard — perfect for outdoor relaxation and entertaining• Easy access to parks, the LIRR, Syosset Library, shopping, and major roadways

More Property Details

Animals Policy: No

Room Information

Bedroom: 4   Full Bath: 3   Other: 1  

Property Features

Lot Size: 0.1607   Lot Sq Ft: 7000   Approx. Int. Sq. Ft.: 1568.00   Garage: Yes   Garage: 2.0   Parking Spaces: Yes   Parking Facilities: Attached, Driveway, Garage   Deck: Yes   Stories: 2  

Appliances & Utilities

Heat: Baseboard, Natural Gas   A/C: Central Air   Water: Public   Sewer: Public Sewer  

Financial

Security Deposit: 1 Month  

Local Area Information

School District: Baylis Elementary School  

Listing Information provided courtesy of BERKSHIRE HATHAWAY  516-200-5700
Inquire About This Property

(*) - Required fields

  1. Presented by

    Gold Coast Homes & Estates
    • Gold Coast Homes & Estates
    • Licensed Real Estate Broker
    • (631) 283-1000
    •   Contact Us
OneKey™ MLSThe source of the displayed data is either the property owner or public record provided by non-governmental third parties. It is believed to be reliable but not guaranteed. Information Copyright 2020, OneKey™ MLS
© 2025 Gold Coast Homes & Estates. All rights reserved | Login | DMCA Notice | Search Engine powered by eRealtyMedia.com