Properties 23108 of 28252 results« Previous property   Next property »

23 Kiscona Rd, Mount Kisco, NY, 10549 $5,000

Office Commercial  

Property Picture
1 of 36
 
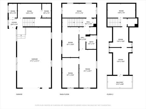
Front of Structure Side of Structure Front of Structure Side of Structure Side of Structure Entry Entry Other Other Other Office Office Office Office Office Office Office Office Office Office Office Bathroom Other Other Other Office Office Garage Garage Garage Balcony Balcony Floor Plan Floor Plan Floor Plan Floor Plan
 

Details ML#: 866056  

  • Sale or Rent:Rent
  • Year Built: 1925
  • Taxes: $8,879
  • Status:Active

Description

Rare Commercial Rental Opportunity in the Heart of Mount Kisco! Don’t miss this unique chance to lease versatile commercial space ideally located in central Mount Kisco. Zoned for Service Commercial use (see attached documents for full list of approved uses), this property offers a flexible layout suitable for a variety of business types. Property Features: 1st Floor: Garage with additional room ideal for a reception area or small office. 2nd Floor: 3 private offices, a common area, and a full bathroom—perfect for a professional or administrative setup. 3rd Floor: Usable attic-level space with low ceilings—excellent for storage needs. Parking: On-site parking for at least 6 vehicles. Prime Location: Conveniently close to downtown Mount Kisco, Metro-North train station, bus routes, Northern Westchester Hospital, and major highways. This is a rare find for businesses seeking location, convenience, and adaptability, such as contractor / mechanic / electrician / plumber looking for a warehouse plus offices.

More Property Details

Property Features

Lot Size: 0.169   Lot Sq Ft: 7361   Parking Spaces: Yes   Parking Spaces: 6   Parking Facilities: Off Street  

Appliances & Utilities

Heat: Hot Water, Oil   A/C: Wall/Window Unit(s)   Water: Public   Sewer: Public Sewer  

Financial

Taxes: $8,879  

Listing Information provided courtesy of William Raveis Real Estate  914-276-0900
Inquire About This Property

(*) - Required fields

  1. Presented by

    Gold Coast Homes & Estates
    • Gold Coast Homes & Estates
    • Licensed Real Estate Broker
    • (631) 283-1000
    •   Contact Us
OneKey™ MLSThe source of the displayed data is either the property owner or public record provided by non-governmental third parties. It is believed to be reliable but not guaranteed. Information Copyright 2020, OneKey™ MLS
© 2025 Gold Coast Homes & Estates. All rights reserved | Login | DMCA Notice | Search Engine powered by eRealtyMedia.com