Properties 24277 of 28057 results« Previous property   Next property »

1097 Old Country Rd Unit 103, Plainview, NY, 11803 $3,666

Office Commercial  

Property Picture
1 of 22
 
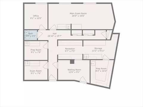
Aerial View Entry Parking Lobby Other Sitting Room Office Office Office Closet Office Other Other Other Other Other Office Bathroom Parking Parking Front of Structure Floor Plan
 

Details ML#: 892857  

  • # of Families: 1
  • Sale or Rent:Rent
  • Status:Active

Description

This is an 1, 100 sqft office suite in a prime office building with plenty of parking in the private parking lot. The office suite is currently set up as a medical use, but it can be utilized into any professional office as well. There are a total of 8 rooms that can be configured as private offices, medical/exam rooms, reception and waiting rooms, etc. There is one private bathroom within this suite. The location is central to highways and expressways and located on a main corridor at a lighted intersection.

More Property Details

Property Features

Lot Size: 0.98   Lot Sq Ft: 42689   Parking Spaces: Yes   Parking Spaces: 80   Parking Facilities: Parking Lot, Private   Stories: 2  

Appliances & Utilities

Heat: Forced Air   A/C: Central Air   Water: Public   Sewer: Public Sewer  

Listing Information provided courtesy of Keller Williams Realty Greater  516-873-7100
Inquire About This Property

(*) - Required fields

  1. Presented by

    Gold Coast Homes & Estates
    • Gold Coast Homes & Estates
    • Licensed Real Estate Broker
    • (631) 283-1000
    •   Contact Us
OneKey™ MLSThe source of the displayed data is either the property owner or public record provided by non-governmental third parties. It is believed to be reliable but not guaranteed. Information Copyright 2020, OneKey™ MLS
© 2025 Gold Coast Homes & Estates. All rights reserved | Login | DMCA Notice | Search Engine powered by eRealtyMedia.com