Properties 24513 of 28252 results« Previous property   Next property »

2816 Long Beach Rd, Oceanside, NY, 11572 $3,500

Office Commercial  

Property Picture
1 of 27
 
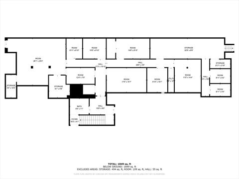
Front of Structure Other Other Fence Basement Basement Basement Other Other Basement Basement Other Basement Other Other Other Basement Other Other Basement Basement Bathroom Basement Basement Parking Parking Floor Plan
 

Details ML#: 855190  

  • Sale or Rent:Rent
  • Status:Active

Description

Discover a versatile lower-level commercial space available for lease in a prime Oceanside location on bustling Long Beach Road. Ideal for professionals, small businesses, or satellite offices, this unit is thoughtfully divided into multiple private offices, offering a flexible layout to suit a range of business needs.The space features:-Several individual office rooms perfect for private work areas or client meetingsA renovated bathroom2 Private lower-level entranceExcellent visibility and accessibility from Long Beach RdClose proximity to major transportation, local shops, and restaurantsWhether you’re a Specialist, consultant, or small business owner, this Oceanside commercial space offers affordability, functionality, and a professional setting to grow your business.Schedule a viewing today and secure your spot in this well-trafficked location!

More Property Details

Property Features

Parking Spaces: Yes   Parking Facilities: Off Street, On Street, Parking Lot  

Appliances & Utilities

Heat: Natural Gas   A/C: Central Air   Water: Public   Sewer: Public Sewer  

Listing Information provided courtesy of Signature Premier Properties  516-232-5888
Inquire About This Property

(*) - Required fields

  1. Presented by

    Gold Coast Homes & Estates
    • Gold Coast Homes & Estates
    • Licensed Real Estate Broker
    • (631) 283-1000
    •   Contact Us
OneKey™ MLSThe source of the displayed data is either the property owner or public record provided by non-governmental third parties. It is believed to be reliable but not guaranteed. Information Copyright 2020, OneKey™ MLS
© 2025 Gold Coast Homes & Estates. All rights reserved | Login | DMCA Notice | Search Engine powered by eRealtyMedia.com