Properties 2663 of 27256 results« Previous property   Next property »

71 Old Mountain Rd S, Nyack, NY, 10960 $1,875,000

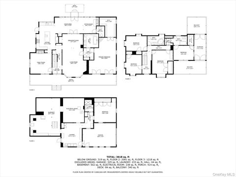
Single Family For Sale 6 Beds , 5 Full Bath , 1 Half Bath , 4151 SqFt 

Property Picture
1 of 49
 
Aerial View Other Front of Structure Deck Deck Entry Living Room Living Room Living Room Living Room Other Dining Area Dining Area Dining Area Other Family Room Family Room Primary Bathroom Primary Bathroom Primary Bedroom Primary Bedroom Bedroom Bedroom Bedroom Bedroom Sun Room View Living Room Living Room Other Guest Quarters Guest Quarters Guest Quarters Guest Quarters
 

Details ML#: 931754  

  • Style: Mini Estate, Victorian
  • Year Built: 1850
  • Taxes: $35,033
  • Status:Active

Description

Described in The Hook magazine as “Camelot on the Hudson, ” this Hudson River mini-estate evokes the romance of a bygone era reimagined for modern living. Set on 1.37 lush acres, the five-bedroom main residence blends history and design—reclaimed wood floors, soaring ceilings, leaded-glass transoms, and sunlight filtering through tall windows that frame the river beyond. The gracious layout connects elegant entertaining spaces to a chef’s kitchen designed for gatherings of family and friends, while the first-floor primary suite—with its fireplace, spa bath, and dressing room—offers a retreat of quiet luxury. Thoughtful updates including a new slate roof, copper flashing, and four Tesla Powerwalls pair sustainability with enduring quality.A detached writer’s cottage with wood-burning stove invites creative work or peaceful retreat. Beyond this studio, in the third building on the estate, a separate guest suite with private deck and spa bath provides boutique-hotel comfort atop a heated four-car garage.Step outside onto any of the expansive decks to soak in the Hudson’s ever-changing light by day or the magical shimmer of the Tappan Zee Bridge by night. Ride along the riverfront trails, dock your boat nearby, or explore the villages of Nyack and Piermont for dining, art, and live music. Just 15 minutes to Metro-North and 25 to the GW Bridge—riverfront living at its most refined: timeless, private, and effortlessly connected to the world beyond.Total taxes = $35, 033.07 (2025 School taxes = $27, 753.66; 2025 T & C taxes =$7, 279.41) Does not include basic STAR rebate

More Property Details

Room Information

Bedroom: 6   Full Bath: 5   Half Bath: 1   Other: 8  

Property Features

ConstructionMaterials: Balcony, Mailbox   Lot Size: 1.37   Lot Sq Ft: 59677   Approx. Int. Sq. Ft.: 4151.00   Garage: Yes   Garage: 5.0   Parking Spaces: Yes   Parking Spaces: 1   Parking Facilities: Attached, Detached, Driveway, Garage, Garage Door Opener   Deck: Yes   Porch Description: Yes  

Appliances & Utilities

Heat: Baseboard, Forced Air, Natural Gas   A/C: Central Air   Water: Public   Sewer: Public Sewer  

Financial

Taxes: $35,033  

Local Area Information

School District: Upper Nyack  

Listing Information provided courtesy of Wright Bros Real Estate Inc.  845-358-3050
Inquire About This Property

(*) - Required fields

  1. Presented by

    Gold Coast Homes & Estates
    • Gold Coast Homes & Estates
    • Licensed Real Estate Broker
    • (631) 283-1000
    •   Contact Us
OneKey™ MLSThe source of the displayed data is either the property owner or public record provided by non-governmental third parties. It is believed to be reliable but not guaranteed. Information Copyright 2020, OneKey™ MLS
© 2025 Gold Coast Homes & Estates. All rights reserved | Login | DMCA Notice | Search Engine powered by eRealtyMedia.com