Properties 28054 of 28057 results« Previous property   Next property »

238 Watkins Avenue, Middletown, NY, 10940 $2

Mixed Use Commercial  

Property Picture
1 of 5
 
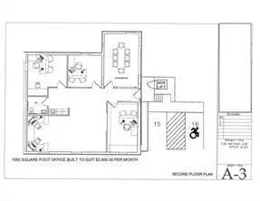
Reception Front of Structure Floor Plan Other Floor Plan
 

Details ML#: 880335  

  • Sale or Rent:Rent
  • Year Built: 1986
  • Taxes: $22,034
  • Status:Active

Description

Rare find in City of Middletown, Town of Wallkill. 3 miles from Mr. 17. The current picture is an artist’s rendering of the finished façade. The building is nearly 100% completed with renovations. Still time to devise your custom space with a minimum of 700sf to over 5000sf. Office space with Warehouse and Storage. Fenced-in private parking lot for trucks or fleet. Perfect location and setup for Contractors, Landscapers, Manufacturing, and fulfillment centers. Professional offices can me provided as well. Building specifics: 600amp service, 3 phase electric, natural gas, fiber optics. New well-lit parking lot, completely ADA accessible, Cooling with SEER rating 12+, Floor load: 10, common utilities available include cooling, heating lighting. Easy in and out of this City of Middletown location.

More Property Details

Property Features

Lot Size: 1.05   Parking Spaces: Yes   Parking Facilities: Off Street, On Street   Stories: 2  

Appliances & Utilities

Heat: ENERGY STAR Qualified Equipment, Forced Air, Heat Pump, Natural Gas   A/C: Central Air, Ductless, Ductwork, ENERGY STAR Qualified Equipment   Water: Public   Sewer: Public Sewer  

Financial

Taxes: $22,034  

Listing Information provided courtesy of Keller Williams Realty  845-928-8000
Inquire About This Property

(*) - Required fields

  1. Presented by

    Gold Coast Homes & Estates
    • Gold Coast Homes & Estates
    • Licensed Real Estate Broker
    • (631) 283-1000
    •   Contact Us
OneKey™ MLSThe source of the displayed data is either the property owner or public record provided by non-governmental third parties. It is believed to be reliable but not guaranteed. Information Copyright 2020, OneKey™ MLS
© 2025 Gold Coast Homes & Estates. All rights reserved | Login | DMCA Notice | Search Engine powered by eRealtyMedia.com