Properties 3712 of 27256 results« Previous property   Next property »

221 Macdougal Street, Brooklyn, NY, 11233 $1,500,000

Multi Family For Sale 5 Beds , 3 Full Bath  

Property Picture
1 of 26
 
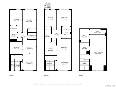
Other Side of Structure Side of Structure Dining Area Dining Area Kitchen Dining Area Kitchen Office Bedroom Bedroom Bedroom Bedroom Bedroom Dining Area Bathroom Other Bathroom Bathroom Bathroom Yard Back of Structure Floor Plan Floor Plan Floor Plan Floor Plan
 

Details ML#: 935229  

  • # of Families: 2
  • Year Built: 2001
  • Taxes: $7,101
  • Status:Active

Description

This beautiful two-family brick home is located in Bed-Stuy, Brooklyn. The property features a 3-bedroom duplex over a 2-bedroom unit. The main floor of the duplex unit has 2 bedrooms, living room, dining room, kitchen, and a full bath. The top floor has one bedroom and a full bath. The additional two-bedroom, one-full-bath unit is great for additional rental income. 2 parking spaces in the front of the property and nice backyard space is perfect for entertaining. The home is close to restaurants, shopping, a gym, and other amenities.

More Property Details

Room Information

Bedroom: 5   Full Bath: 3  

Property Features

Lot Size: 0.0459   Lot Sq Ft: 2000   Parking Spaces: Yes   Parking Spaces: 2   Parking Facilities: Driveway  

Appliances & Utilities

Heat: Baseboard   A/C: None   Water: Other   Sewer: Other  

Financial

Taxes: $7,101  

Listing Information provided courtesy of Excell Choice Realty  718-705-4646
Inquire About This Property

(*) - Required fields

  1. Presented by

    Gold Coast Homes & Estates
    • Gold Coast Homes & Estates
    • Licensed Real Estate Broker
    • (631) 283-1000
    •   Contact Us
OneKey™ MLSThe source of the displayed data is either the property owner or public record provided by non-governmental third parties. It is believed to be reliable but not guaranteed. Information Copyright 2020, OneKey™ MLS
© 2025 Gold Coast Homes & Estates. All rights reserved | Login | DMCA Notice | Search Engine powered by eRealtyMedia.com