Properties 4208 of 27565 results« Previous property   Next property »

71 Commodore Rd, Chappaqua, NY, 10514 $1,425,000

Single Family For Sale 3 Beds , 2 Full Bath , 1957 SqFt 

Property Picture
1 of 39
 
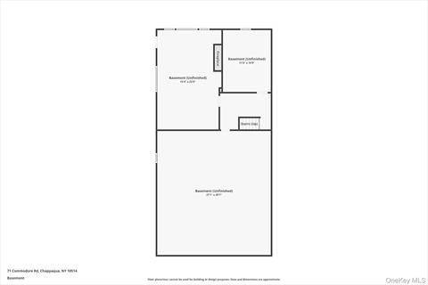
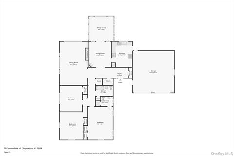
Front of Structure Front of Structure Entry Entry Dining Room Dining Room Dining Room Sun Room Sun Room Sun Room Living Room Living Room Living Room Living Room Kitchen Kitchen Kitchen Bedroom Bedroom Bedroom Bedroom Bathroom Bathroom Yard Basement Basement Basement Back of Structure Deck Back of Structure Yard Back of Structure Aerial View View Front of Structure Back of Structure Aerial View Floor Plan Floor Plan
 

Details ML#: 922538  

  • Style: Split Ranch
  • Year Built: 1955
  • Taxes: $23,180
  • Status:Active

Description

Perfectly positioned on a serene and private 1.72 parcel in the sought-after, coveted Commodore Road neighborhood, this classic ranch-style home offers incredible potential just minutes from Chappaqua village, train, shops, and schools. Surrounded by mature trees, natural rock outcroppings, and a level backyard, this beautifully sited property with a majestic long driveway, is a rare find—offering both privacy and convenience. This meticulously maintained and solidly built home originally owned by its builder, offers an exceptional combination of privacy, natural beauty, and convenience to every amenity. This nearly 2, 000 sq ft home with additional living area not included in the sq ft, provides the perfect structure for a forever home and your personal vision. The spacious first floor features a wide welcoming entry hall, leading to an oversized living room with a mantled fireplace and walls of windows bathing the room in natural light framing unforgettable woodland views. The formal dining room adjoins the kitchen and an enclosed 500 sq ft (not included in the home’s sq ft) three season glass-enclosed screened porch with high soaring ceilings which brings the outdoors in and fills the home with natural light. The spacious deck is accessible from both the enclosed porch and kitchen which provides effortless modern indoor outdoor entertaining amid natural beauty. Gleaming hardwood floors found throughout the home, further enhance the home’s space. Two steps up to the charming bedroom mezzanine which features three large bedrooms, including a primary suite with en-suite bath and two additional oversized bedrooms share a hall bath, offering flexibility for family, guests, or home office space. The lower level includes a large unfinished basement with a wonderful walk-out room (370 sq ft) with a wood burning fireplace, large picture windows and door out—ideal for a media room, playroom, gym, or home office. The utility room with a NEW Burnham boiler and hot water heater also has ample room for a modern laundry room. The basement also has a third large storage room with above-ground oil tanks and plenty of room for a workshop. The house enjoys radiant ceiling heat via copper piping. There is a walk-up attic in the home which offers more storage space and additional expansion opportunities. 2 car garage with two entry doors and separate attic storage. This home is an exceptional opportunity with endless possibilities in a prime Chappaqua location—not to be missed!!

More Property Details

Room Information

Bedroom: 3   Full Bath: 2   Other: 2  

Property Features

Lot Size: 1.72   Lot Sq Ft: 74923   Approx. Int. Sq. Ft.: 1957.00   Garage: Yes   Garage: 2.0   Parking Spaces: Yes   Parking Facilities: Driveway, Garage   Deck: Yes   Porch Description: Yes  

Appliances & Utilities

Heat: Baseboard   A/C: Wall/Window Unit(s)   Water: Public   Sewer: Septic Tank  

Financial

Taxes: $23,180  

Local Area Information

School District: Roaring Brook  

Listing Information provided courtesy of Compass Greater NY, LLC  914-238-0676
Inquire About This Property

(*) - Required fields

  1. Presented by

    Gold Coast Homes & Estates
    • Gold Coast Homes & Estates
    • Licensed Real Estate Broker
    • (631) 283-1000
    •   Contact Us
OneKey™ MLSThe source of the displayed data is either the property owner or public record provided by non-governmental third parties. It is believed to be reliable but not guaranteed. Information Copyright 2020, OneKey™ MLS
© 2025 Gold Coast Homes & Estates. All rights reserved | Login | DMCA Notice | Search Engine powered by eRealtyMedia.com