Properties 6866 of 28057 results« Previous property   Next property »

3043 Bailey Avenue, Bronx, NY, 10463 $999,999

Multi Family For Sale 3 Beds , 1 Full Bath  

Property Picture
1 of 38
 
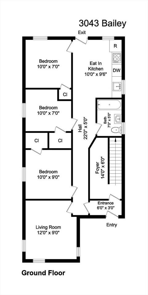
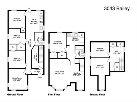
Front of Structure Kitchen Kitchen Living Room Bedroom Other Office Bedroom Bedroom Bathroom Other Kitchen Kitchen Kitchen Other Bedroom Bedroom Bedroom Bedroom Bathroom Patio Other Side of Structure Other Side of Structure Front of Structure Front of Structure Garage Back of Structure Front of Structure Aerial View Aerial View Aerial View Aerial View Floor Plan Floor Plan Floor Plan Floor Plan
 

Details ML#: 890074  

  • # of Families: 2
  • Year Built: 1920
  • Taxes: $6,289
  • Status:Active

Description

For Sale: Two-Family Home with Garage & Finished Basement – 3043 Bailey Ave, Bronx, NY 10463 3-Bedroom Unit Over 1-Bedroom Unit Finished Basement Detached 2-Car Garage R6 Zoning Ideal for Future Development Welcome to 3043 Bailey Avenue, a well-maintained two-family brick home in the desirable Kingsbridge section of the Bronx. This spacious and versatile property is perfect for owner-occupants, extended families, or investors looking for strong rental income and long-term potential. Home Layout: First Floor: 1-bedroom apartment — ideal for in-laws, guests, or rental income Second Floor: 3-bedroom apartment — large living space with natural light and hardwood floors Finished Basement: Provides bonus space with separate entrance — perfect for storage, recreation, or potential conversion Detached 2-car garage with private driveway.A rare find in the Bronx! Solid Investment with R6 Zoning: This property sits in an R6 zone, offering flexibility for future development. R6 zoning allows for medium-density residential construction — meaning a buyer can build upward or expand the footprint to add more units (subject to city approval). This makes it a great opportunity for developers or those planning for the future. Prime Location: Steps from shopping, schools, and local eateries Minutes to the 1 train and major highways (I-87, Bronx River Pkwy) Close to Van Cortlandt Park, one of NYC’s largest parks Located in a quiet residential block with excellent rental demand This is a rare opportunity to own a spacious and income-producing two-family home with garage parking, a finished basement, and development potential in a fast-growing Bronx neighborhood. Please use our platform to submit your offer. See the link belowhttps://app.locqube.com/buy/presentation/3043-bailey-ave-bronx-ny-10463-63913825Call today to schedule your private showing – this one won’t last!

More Property Details

Room Information

Bedroom: 3   Full Bath: 1  

Property Features

Lot Size: 0.0707   Lot Sq Ft: 3079   Garage: Yes   Garage: 2.0  

Appliances & Utilities

Heat: Baseboard   A/C: Wall/Window Unit(s)   Water: Public   Sewer: Public Sewer  

Financial

Taxes: $6,289  

Listing Information provided courtesy of Locqube New York, Inc.  347-657-1114
Inquire About This Property

(*) - Required fields

  1. Presented by

    Gold Coast Homes & Estates
    • Gold Coast Homes & Estates
    • Licensed Real Estate Broker
    • (631) 283-1000
    •   Contact Us
OneKey™ MLSThe source of the displayed data is either the property owner or public record provided by non-governmental third parties. It is believed to be reliable but not guaranteed. Information Copyright 2020, OneKey™ MLS
© 2025 Gold Coast Homes & Estates. All rights reserved | Login | DMCA Notice | Search Engine powered by eRealtyMedia.com