Properties 717 of 28252 results« Previous property   Next property »

880 60th Street Unit 1A, Brooklyn, NY, 11220 $4,280,000

Mixed Use Commercial  

Property Picture
1 of 23
 
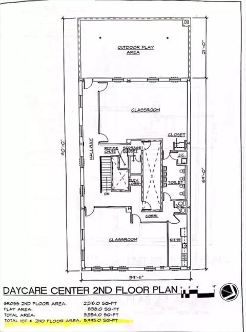
Patio Game Room Game Room Other Other Game Room Bathroom Game Room Game Room Game Room Game Room Bathroom Kitchen Game Room Other Office Garage Front of Structure Aerial View View View Floor Plan Floor Plan
 

Details ML#: 887843  

  • Sale or Rent:Sale
  • Year Built: 2000
  • Taxes: $54,498
  • Status:Active

Description

Prime Sunset Park Commercial Condo with Stable Tenant & 6.5% Cap Rate — Optional Parking AvailableLocated in the heart of Brooklyn’s thriving 8th Avenue corridor, this two-level commercial condominium offers investors a rare opportunity to acquire a high-yield, low-maintenance asset with a long-term tenant in place. Currently leased to a well-established daycare center, the property generates a strong 6.5% cap rate—more than double the average return of nearby properties in the area.The unit spans approximately 4, 785 square feet across two floors. The ground level features three classrooms, an administrative office, and two restrooms. The second level offers two additional classrooms, two restrooms, a full kitchen, a storage room, and a spacious outdoor playground located on the second-floor terrace. Each classroom is equipped with split-unit air conditioning, and ceiling heights throughout are approximately 8 to 8.5 feet. A separately deeded parking space is also available for purchase. Monthly common charges and floor plans are available upon request.The property is being sold with a long-term lease in place, providing steady income from a stable, established tenant. Situated in one of Brooklyn’s most active commercial districts, the property benefits from strong local demand and excellent accessibility. The N train is just short distance away, and multiple bus lines serve the area. With strong neighborhood demand, excellent visibility, and a long-term tenant in place, this is an ideal opportunity for investors seeking steady cash flow in a prime location.

More Property Details

Property Features

Lot Size: 0.0918   Lot Sq Ft: 4000   Parking Spaces: Yes   Parking Facilities: Garage  

Appliances & Utilities

Heat: Forced Air, Natural Gas   A/C: Ductless   Water: Public   Sewer: Public Sewer  

Financial

Taxes: $54,498  

Listing Information provided courtesy of B Square Realty  646-889-9988
Inquire About This Property

(*) - Required fields

  1. Presented by

    Gold Coast Homes & Estates
    • Gold Coast Homes & Estates
    • Licensed Real Estate Broker
    • (631) 283-1000
    •   Contact Us
OneKey™ MLSThe source of the displayed data is either the property owner or public record provided by non-governmental third parties. It is believed to be reliable but not guaranteed. Information Copyright 2020, OneKey™ MLS
© 2025 Gold Coast Homes & Estates. All rights reserved | Login | DMCA Notice | Search Engine powered by eRealtyMedia.com