Properties 1682 of 3099 results« Previous property   Next property »

23 Overlook Drive, Warwick, NY, 10990 $745,000

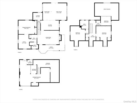
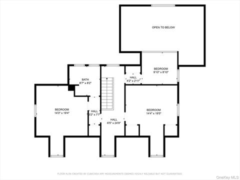
Single Family For Sale 3 Beds , 2 Full Bath , 1 Half Bath , 2267 SqFt 

Property Picture
1 of 50
 
Front of Structure Front of Structure Entry Entry Living Room Living Room Other Kitchen Kitchen Kitchen Kitchen Dining Area Dining Area Living Room Living Room Living Room Living Room Living Room Bathroom Bathroom Office Office Bedroom Bedroom Laundry Bedroom Bedroom Bedroom Sitting Room Bedroom Other Bedroom Bathroom Bathroom Exercise Room Basement Basement Bathroom Back of Structure Patio Patio Out Buildings Yard Yard Yard Yard Floor Plan Floor Plan Floor Plan Floor Plan
 

Details ML#: 915869  

  • Style: Cape Cod
  • Year Built: 1954
  • Taxes: $11,500
  • Status:Active

Description

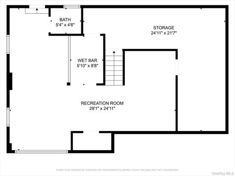
Welcome to your charming Cape Cod retreat in the heart of the Village of Warwick. This beautifully maintained 3-bedroom, 2.5-bathroom home perfectly blends classic style with modern amenities.Step inside to discover a bright and open floor plan, featuring gleaming hardwood floors and high ceilings that create an airy and spacious feel. The gourmet kitchen is a chef’s dream, boasting sleek stainless steel appliances and elegant granite countertops. Gather with family and friends in the expansive great room, ideal for both everyday living and entertaining.Enjoy the comfort of central air conditioning throughout the home. The partially finished basement offers a home gym, media room, and play area. Set on a picturesque .91-acre lot, the property provides a private and serene outdoor escape. Beyond your private oasis, you’re just a short stroll from the vibrant pulse of Warwick. Enjoy the convenience of walking to the village’s unique shops, acclaimed restaurants, and all the cultural charm this beautiful town has to offer. This is more than a home; it’s a lifestyle.

More Property Details

Room Information

Bedroom: 3   Full Bath: 2   Half Bath: 1   Other: 5  

Property Features

ConstructionMaterials: Fire Pit, Garden   Lot Size: 0.9091   Lot Sq Ft: 39600   Approx. Int. Sq. Ft.: 2267.00   Garage: 0.0   Parking Spaces: Yes   Parking Facilities: Driveway, Off Street   Porch Description: Yes  

Appliances & Utilities

Heat: Forced Air, Natural Gas   A/C: Central Air   Water: Public   Sewer: Public Sewer  

Financial

Taxes: $11,500  

Local Area Information

School District: Park Avenue Elementary School  

Listing Information provided courtesy of Keller Williams Realty  845-928-8000
Inquire About This Property

(*) - Required fields

  1. Presented by

    Gold Coast Homes & Estates
    • Gold Coast Homes & Estates
    • Licensed Real Estate Broker
    • (631) 283-1000
    •   Contact Us
OneKey™ MLSThe source of the displayed data is either the property owner or public record provided by non-governmental third parties. It is believed to be reliable but not guaranteed. Information Copyright 2020, OneKey™ MLS
© 2025 Gold Coast Homes & Estates. All rights reserved | Login | DMCA Notice | Search Engine powered by eRealtyMedia.com