Properties 2101 of 3107 results« Previous property   Next property »

64 Palomino Place, New Windsor, NY, 12553 $549,000

Single Family For Sale 3 Beds , 3 Full Bath , 2122 SqFt 

Property Picture
1 of 33
 
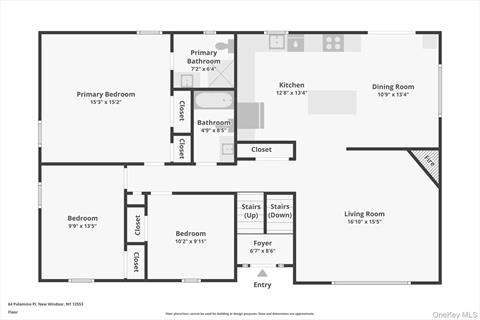
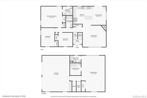
Front of Structure Side of Structure Living Room Living Room Living Room Kitchen Kitchen Kitchen Primary Bedroom Bedroom Primary Bathroom Bedroom Bedroom Bedroom Bathroom Recreation Room Recreation Room Laundry Bathroom Garage Yard Deck Deck Yard Yard Other Other Aerial View Aerial View Aerial View Floor Plan Floor Plan Floor Plan
 

Details ML#: 908627  

  • Style: Split Level
  • Year Built: 1998
  • Taxes: $11,529
  • Status:Active

Description

Welcome to your dream home nestled at the end of a quiet cul-de-sac in the highly sought-after Cornwall School District. This beautifully maintained 3-bedroom, 3-bathroom home offers the perfect blend of privacy, comfort, and convenience — all set on a spacious, wooded lot adjacent to the scenic Heritage Trail. Step into the inviting living room featuring a large bay window that fills the space with natural light and provides stunning views of the landscaped front yard. The primary suite offers a tranquil retreat with two closets and a private ensuite bathroom. Two additional bedrooms provide ample space for family, guests, or a home office. Enjoy cooking and entertaining in the expansive eat-in kitchen, complete with granite countertops, travertine backsplash, a center island with extra storage, and stainless steel appliances including a double oven and French door refrigerator. Sliding glass doors with built-in blinds lead to a large deck, ideal for outdoor dining and relaxing. The backyard oasis features a stone patio and firepit, perfect for gathering with family and friends on cool autumn evenings. The finished basement includes a bonus room, a full bathroom, and a laundry room — offering flexible space for a guest suite, playroom, gym, or home office. Additional highlights include a 2-car garage with built-in storage cabinets and direct access to the Heritage Trail, offering miles of serene walking and running paths — all just minutes from grocery stores, restaurants, coffee shops, and Salisbury Mills Train Station for an easy commute to NYC. Don’t miss your opportunity to own this stunning home in a prime location — schedule your private showing today!

More Property Details

Room Information

Bedroom: 3   Full Bath: 3   Other: 3  

Property Features

ConstructionMaterials: Fire Pit, Mailbox   Lot Size: 1.7   Lot Sq Ft: 74052   Approx. Int. Sq. Ft.: 2122.00   Garage: Yes   Garage: 2.0   Parking Spaces: Yes   Parking Spaces: 4   Parking Facilities: Attached, Driveway, Garage   Deck: Yes  

Appliances & Utilities

Heat: Oil   A/C: Central Air   Water: Well   Sewer: Septic Tank  

Financial

Taxes: $11,529  

Local Area Information

School District: Cornwall Elementary School  

Listing Information provided courtesy of Howard Hanna Rand Realty  845-294-3100
Inquire About This Property

(*) - Required fields

  1. Presented by

    Gold Coast Homes & Estates
    • Gold Coast Homes & Estates
    • Licensed Real Estate Broker
    • (631) 283-1000
    •   Contact Us
OneKey™ MLSThe source of the displayed data is either the property owner or public record provided by non-governmental third parties. It is believed to be reliable but not guaranteed. Information Copyright 2020, OneKey™ MLS
© 2025 Gold Coast Homes & Estates. All rights reserved | Login | DMCA Notice | Search Engine powered by eRealtyMedia.com