Properties 2328 of 3045 results« Previous property   Next property »

219 Storm Drive, Holtsville, NY, 11742 $429,000

Condo For Sale 2 Beds , 1 Full Bath , 890 SqFt 

Property Picture
1 of 49
 
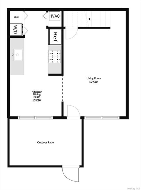
Community Community Front of Structure Front of Structure Entry Patio Patio Patio Patio Patio Patio Living Room Living Room Living Room Living Room Other Living Room Other Entry Entry Living Room Dining Area Dining Area Kitchen Kitchen Kitchen Kitchen Laundry Laundry Kitchen Kitchen Kitchen Kitchen Kitchen Dining Area Kitchen Bedroom Bedroom Bedroom Bedroom Bathroom Bathroom Aerial View Aerial View Aerial View Aerial View Pool Floor Plan Floor Plan
 

Details ML#: 924072  

  • Year Built: 1972
  • Taxes: $3,668
  • Status:Active

Description

219 Storm Drive, Holtsville, NY — Waverly Park CondosWelcome to Waverly Park! This beautifully maintained 2-bedroom, 1-bathroom condo offers comfort, privacy, and convenience in one of Holtsville’s most desirable pet-friendly communities.Step inside to find a bright and inviting layout with hardwood, tile, and wood-style vinyl flooring throughout. The galley kitchen features quartz countertops, white cabinetry, and stainless steel appliances, opening to a cozy dining area that’s perfect for everyday meals. A stackable washer and dryer are conveniently tucked beside the hot water heater and HVAC system for easy access.Upstairs, you’ll find two generously sized bedrooms, a full bathroom with glass shower doors, and ample closet space, including a walk-in closet and an additional 3x6 storage closet in the primary bedroom.Outside, enjoy your private fenced patio surrounded by beautiful landscaping — an ideal space for relaxing or grilling. The community itself offers resort-style amenities including a saltwater pool, playground, and well-maintained grounds with a designated dog area for your furry friends.With low taxes of just $3, 669, a reasonable HOA fee of $357, and close proximity to major highways, the train, and local villages, this home provides incredible value and convenience.Built in 1972, Waverly Park continues to charm residents with its peaceful setting, strong community feel, and easy access to all Long Island has to offer.Don’t miss your opportunity to make this wonderful Holtsville condo your next home!

More Property Details

Animals Policy: No Restrictions, Yes

Room Information

Bedroom: 2   Full Bath: 1   Other: 1  

Property Features

ConstructionMaterials: Mailbox   Lot Size: 0.08   Lot Sq Ft: 3485   Approx. Int. Sq. Ft.: 890.00   Parking Spaces: Yes   Parking Facilities: On Street, Parking Lot, Open  

Appliances & Utilities

Heat: Forced Air   A/C: Central Air   Water: Private   Sewer: Shared  

Financial

Taxes: $3,668  

Local Area Information

School District: Tamarac Elementary School  

Listing Information provided courtesy of Compass Greater NY LLC  631-387-1772
Inquire About This Property

(*) - Required fields

  1. Presented by

    Gold Coast Homes & Estates
    • Gold Coast Homes & Estates
    • Licensed Real Estate Broker
    • (631) 283-1000
    •   Contact Us
OneKey™ MLSThe source of the displayed data is either the property owner or public record provided by non-governmental third parties. It is believed to be reliable but not guaranteed. Information Copyright 2020, OneKey™ MLS
© 2025 Gold Coast Homes & Estates. All rights reserved | Login | DMCA Notice | Search Engine powered by eRealtyMedia.com