Properties 2800 of 2884 results« Previous property   Next property »

6 Giada Lane Unit 6, Middletown, NY, 10940 $2,300

Apartment For Rent 2 Beds , 1 Full Bath , 950 SqFt 

Property Picture
1 of 29
 
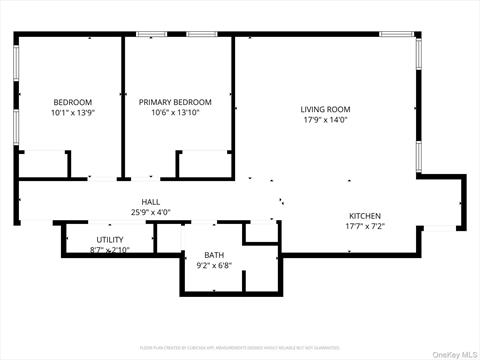
Front of Structure Front of Structure Front of Structure Front of Structure Kitchen Kitchen Kitchen Kitchen Kitchen Living Room Living Room Living Room Living Room Kitchen Living Room Other Other Other Bedroom Bedroom Laundry Bathroom Bathroom Aerial View Aerial View Aerial View Aerial View Aerial View Floor Plan
 

Details ML#: 928691  

  • Style: Modern
  • Year Built: 2025
  • Status:Active

Description

Experience Modern Living in a Brand-New 2-Bedroom Apartment. Take advantage of this rare opportunity to move into a newly constructed 2-bedroom apartment, thoughtfully designed with high-end finishes and modern conveniences. Enjoy a welcoming open floor plan that features a stunning kitchen complete with Quartz countertops and brand-new, energy-efficient stainless steel appliances. Oversized windows throughout the unit fill every room with an abundance of natural light. Comfort is key with central heating and cooling for year-round climate control, and easy-to-maintain laminate flooring that also promotes an allergy-friendly environment. Each apartment is a desirable corner unit, offering added privacy and sunlight. For your convenience, every unit includes an in-unit stackable washer and dryer. For added security, the property is equipped with surveillance cameras on the exterior of each building as well as in the interior hallways. An intercom system allows you to screen and manage visitors with ease. Ample off-street parking is available. Ideally located near Garnet Health Medical Center and Touro College, this residence is within walking distance to supermarkets, local restaurants, shops, and more. Easy access to major highways I-86 and I-84 ensures a smooth commute.

More Property Details

Animals Policy: Breed Restrictions, Cats OK, Dogs OK, Number Limit, Size Limit

Room Information

Bedroom: 2   Full Bath: 1   Other: 1  

Property Features

Approx. Int. Sq. Ft.: 950.00   Parking Spaces: Yes   Parking Spaces: 2   Parking Facilities: Parking Lot   Stories: 4  

Appliances & Utilities

Heat: Electric, Heat Pump, Hot Air   A/C: Central Air   Water: Public   Sewer: Public Sewer  

Financial

Security Deposit: 2300  

Local Area Information

School District: Presidential Park Elementary  

Listing Information provided courtesy of Keller Williams Hudson Valley  845-610-6065
Inquire About This Property

(*) - Required fields

  1. Presented by

    Gold Coast Homes & Estates
    • Gold Coast Homes & Estates
    • Licensed Real Estate Broker
    • (631) 283-1000
    •   Contact Us
OneKey™ MLSThe source of the displayed data is either the property owner or public record provided by non-governmental third parties. It is believed to be reliable but not guaranteed. Information Copyright 2020, OneKey™ MLS
© 2025 Gold Coast Homes & Estates. All rights reserved | Login | DMCA Notice | Search Engine powered by eRealtyMedia.com