Properties 1766 of 3109 results« Previous property   Next property »

2944 Saddle Ridge Drive, Yorktown Heights, NY, 10598 $699,000

Single Family For Sale 3 Beds , 2 Full Bath , 1679 SqFt 

Property Picture
1 of 29
 
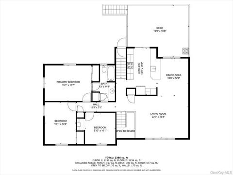
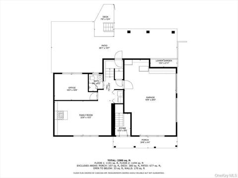
Front of Structure Front of Structure Other Living Room Living Room Living Room Dining Area Kitchen Kitchen Kitchen Other Bathroom Bedroom Bedroom Bedroom Laundry Bathroom Other Other Office Office Deck Deck Yard Yard Back of Structure Back of Structure Floor Plan Floor Plan
 

Details ML#: 912567  

  • Style: Raised Ranch
  • Year Built: 1966
  • Taxes: $14,874
  • Status:Active

Description

Now available in Yorktown—this beautifully maintained three-bedroom, two-bathroom home! With a welcoming front porch, spacious yard, and an interior designed for both comfort and convenience, it’s the perfect place to call home. On the main level, you’ll find a bright and airy living room that flows seamlessly into the dining area and a stunning open kitchen. Recently renovated, this chef’s kitchen boasts abundant cabinet space, granite counters, and plenty of natural light. From here, sliding doors lead to a large deck overlooking the expansive backyard—ideal for relaxing or entertaining. The main level also features the primary bedroom, two additional bedrooms, and a full bathroom. The lower level offers even more, with a second full bathroom, a large family room that can double as a playroom, plus a bonus room perfect for a den or home office. You’ll also find the laundry area and direct access to the two-car garage. This move-in ready home combines comfort, versatility, and a private backyard oasis. Don’t miss your chance—schedule your showing today!

More Property Details

Room Information

Bedroom: 3   Full Bath: 2   Other: 1  

Property Features

ConstructionMaterials: Playground   Lot Size: 0.3698   Lot Sq Ft: 16110   Approx. Int. Sq. Ft.: 1679.00   Garage: Yes   Garage: 2.0   Parking Spaces: Yes   Parking Facilities: Driveway, Garage   Deck: Yes   Porch Description: Yes  

Appliances & Utilities

Heat: Oil   A/C: Central Air   Water: Public   Sewer: Public Sewer  

Financial

Taxes: $14,874  

Local Area Information

School District: Mohansic  

Listing Information provided courtesy of RE/MAX Prestige Properties  914-831-3090
Inquire About This Property

(*) - Required fields

  1. Presented by

    Gold Coast Homes & Estates
    • Gold Coast Homes & Estates
    • Licensed Real Estate Broker
    • (631) 283-1000
    •   Contact Us
OneKey™ MLSThe source of the displayed data is either the property owner or public record provided by non-governmental third parties. It is believed to be reliable but not guaranteed. Information Copyright 2020, OneKey™ MLS
© 2025 Gold Coast Homes & Estates. All rights reserved | Login | DMCA Notice | Search Engine powered by eRealtyMedia.com