Properties 2971 of 3121 results« Previous property   Next property »

515 Mountainview Avenue, Valley Cottage, NY, 10989 $4,750

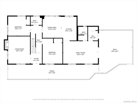
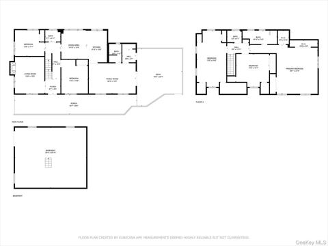
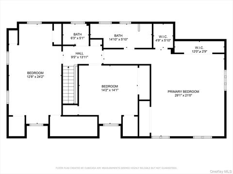
Single Family For Rent 5 Beds , 3 Full Bath , 2200 SqFt 

Property Picture
1 of 48
 
Front of Structure Side of Structure Front of Structure Patio Front of Structure Other Living Room Living Room Bedroom Other Bedroom Bathroom Kitchen Kitchen Bedroom Kitchen Kitchen Kitchen Kitchen Other Bedroom Bathroom Bathroom Entry Other Kitchen Other Other Entry Bonus Room Living Room Bedroom Bathroom Bathroom Bathroom Bathroom Deck Deck Back of Structure Community Community Back of Structure Yard Yard Floor Plan Floor Plan Floor Plan Floor Plan
 

Details ML#: 919232  

  • Style: Colonial
  • Year Built: 1946
  • Status:Active

Description

Spacious 4-Bedroom Colonial in Exclusive Wooded SettingWelcome to this large and light-filled 4-bedroom, 2.5-bath colonial nestled in a private and serene wooded enclave. Located on a quiet private road with direct access to scenic trails, this home offers peace, privacy, and convenience.Featuring a neutral, airy interior and central A/C upper level and casement units on lower level, the layout is ideal for both relaxing and entertaining. Step outside onto the deck and enjoy the tranquil surroundings — a perfect retreat after a long day.With plenty of parking and easy access to the NYS Thruway and Governor Mario Cuomo Bridge (less than 1 mile away), this location combines seclusion with commuter convenience. A rare opportunity to enjoy nature, space, and privacy in a highly sought-after location.

More Property Details

Animals Policy: Yes

Room Information

Bedroom: 5   Full Bath: 3   Other: 2  

Property Features

Approx. Int. Sq. Ft.: 2200.00   Garage: 0.0   Parking Spaces: Yes   Parking Spaces: 5   Parking Facilities: Driveway   Deck: Yes   Stories: 3   Pets: Yes  

Appliances & Utilities

Heat: Baseboard   A/C: Central Air   Water: Public   Sewer: Public Sewer  

Financial

Security Deposit: 50  

Local Area Information

School District: Liberty Elementary School   Lot: 34  

Listing Information provided courtesy of Imagine Properties NY  845-398-1717
Inquire About This Property

(*) - Required fields

  1. Presented by

    Gold Coast Homes & Estates
    • Gold Coast Homes & Estates
    • Licensed Real Estate Broker
    • (631) 283-1000
    •   Contact Us
OneKey™ MLSThe source of the displayed data is either the property owner or public record provided by non-governmental third parties. It is believed to be reliable but not guaranteed. Information Copyright 2020, OneKey™ MLS
© 2025 Gold Coast Homes & Estates. All rights reserved | Login | DMCA Notice | Search Engine powered by eRealtyMedia.com