Properties 526 of 3109 results« Previous property   Next property »

43-27 220th Street, Bayside, NY, 11361 $1,880,000

Multi Family For Sale 6 Beds , 5 Full Bath  

Property Picture
1 of 38
 
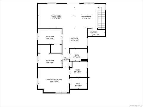
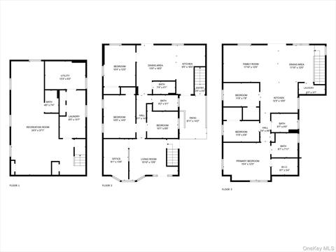
Front of Structure Back of Structure Front of Structure Yard Aerial View Dining Area Floor Plan Dining Area Kitchen Kitchen Living Room Bathroom Bathroom Bedroom Bedroom Bedroom Laundry Floor Plan Entry Kitchen Kitchen Dining Area Bedroom Bathroom Office Entry Office Office Bedroom Office Bathroom Floor Plan Other Laundry Other Exercise Room Exercise Room Floor Plan
 

Details ML#: 909646  

  • Style: Colonial
  • # of Families: 2
  • Year Built: 1945
  • Taxes: $13,208
  • Status:Active

Description

Deliver Vacant. Diamond condition, Prime location, 2-family house with Doctor’s office. Right off Northern Blvd, next to Canton Manor Restaurant. Total renovation in 2020.Brick and frame structure. New C of O issued in 2021. Each Unit features 3 beds, 2 full baths, OSE basement open space with a half bath. Balcony on the 2nd floor. Laundry in each unit. 49.58 X100, R3X lot. Double driveways. All Information Is Deemed Reliable But Is Not Guaranteed. Buyer Is Advised To Verify The Accuracy Of All Information Independently.

More Property Details

Room Information

Bedroom: 6   Full Bath: 5  

Property Features

Lot Size: 0.1138   Lot Sq Ft: 4958   Parking Spaces: Yes   Parking Spaces: 5   Parking Facilities: Driveway  

Appliances & Utilities

Heat: Baseboard, Forced Air, Heat Pump   A/C: ENERGY STAR Qualified Equipment, Multi Units   Water: Public   Sewer: Public Sewer  

Financial

Taxes: $13,208  

Local Area Information

School District: Ps 41 Crocheron  

Listing Information provided courtesy of Century Homes Realty Group LLC  718-886-6800
Inquire About This Property

(*) - Required fields

  1. Presented by

    Gold Coast Homes & Estates
    • Gold Coast Homes & Estates
    • Licensed Real Estate Broker
    • (631) 283-1000
    •   Contact Us
OneKey™ MLSThe source of the displayed data is either the property owner or public record provided by non-governmental third parties. It is believed to be reliable but not guaranteed. Information Copyright 2020, OneKey™ MLS
© 2025 Gold Coast Homes & Estates. All rights reserved | Login | DMCA Notice | Search Engine powered by eRealtyMedia.com