Properties 1407 of 3099 results« Previous property   Next property »

Lot #25 Azalea Lane, Slate Hill, NY, 10973 $849,900

Single Family For Sale 4 Beds , 2 Full Bath , 1 Half Bath , 3358 SqFt 

Property Picture
1 of 13
 
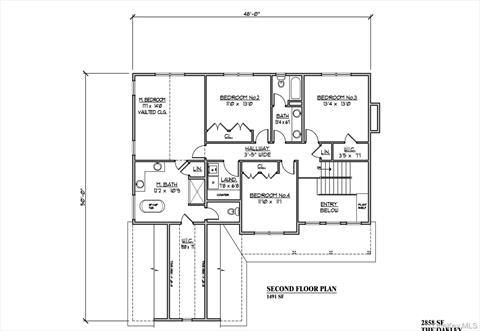
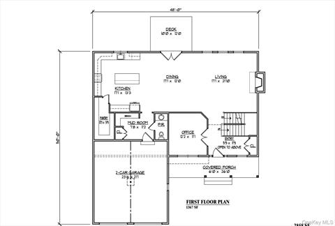
Front of Structure Floor Plan Floor Plan Aerial View Aerial View Aerial View Aerial View Aerial View Aerial View Aerial View Aerial View Aerial View Aerial View
 

Details ML#: 914469  

  • Style: Colonial
  • Year Built: 2025
  • Taxes: $15,245
  • Status:Active

Description

Beautiful new construction being built in Ridgebury Estates, a new community of carefully crafted colonials perched high on a hill with tree-lined streets, stone walls and lots of open space. Situated in the heart of Orange County, NY and in the highly sought-after Minisink Valley School District. The Oakley Model offers comfort, elegance, and thoughtful features throughout. The exterior boasts a covered front porch with stone accents and landscaped grounds, creating a warm and inviting first impression. Inside, the first floor features a bright open floor plan with an oversized living room complete with a cozy fireplace, and a formal dining room enhanced by French doors that lead out to a private back deck—ideal for indoor-outdoor entertaining. The gourmet kitchen is a showstopper, featuring a large center island, custom cabinetry, quartz countertops, decorative tile backsplash, and stainless steel appliances. A convenient mudroom, walk-in pantry, and private office complete the functionality of the main level. Upstairs, the second floor offers four generously sized bedrooms, including a luxurious primary suite with vaulted ceilings, a spa-inspired bath with double vanity, tiled shower, and a relaxing soaking tub. A second-floor laundry room adds ease to daily living, while three additional bedrooms provide ample space for family or guests. Additional highlights include central air, a two-car garage, and high-end finishes throughout. The Oakley Model is the perfect blend of space, style, and smart design—ready to welcome you home.

More Property Details

Room Information

Bedroom: 4   Full Bath: 2   Half Bath: 1   Other: 1  

Property Features

Lot Size: 0.46   Lot Sq Ft: 20038   Approx. Int. Sq. Ft.: 3358.00   Garage: Yes   Garage: 2.0   Parking Spaces: Yes   Parking Facilities: Attached, Driveway, Garage   Deck: Yes   Porch Description: Yes  

Appliances & Utilities

Heat: Forced Air   A/C: Central Air   Water: Well   Sewer: Septic Tank  

Financial

Taxes: $15,245  

Local Area Information

School District: Minisink Valley Elementary  

Listing Information provided courtesy of Realty Promotions Inc  845-381-5777
Inquire About This Property

(*) - Required fields

  1. Presented by

    Gold Coast Homes & Estates
    • Gold Coast Homes & Estates
    • Licensed Real Estate Broker
    • (631) 283-1000
    •   Contact Us
OneKey™ MLSThe source of the displayed data is either the property owner or public record provided by non-governmental third parties. It is believed to be reliable but not guaranteed. Information Copyright 2020, OneKey™ MLS
© 2025 Gold Coast Homes & Estates. All rights reserved | Login | DMCA Notice | Search Engine powered by eRealtyMedia.com