Properties 1819 of 3099 results« Previous property   Next property »

282 Tamerisk Lane, New Windsor, NY, 12553 $675,000

Condo For Sale 3 Beds , 3 Full Bath , 1 Half Bath , 3102 SqFt 

Property Picture
1 of 45
 
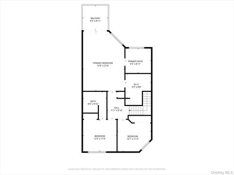
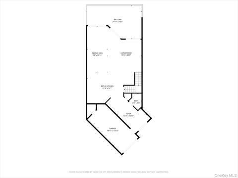
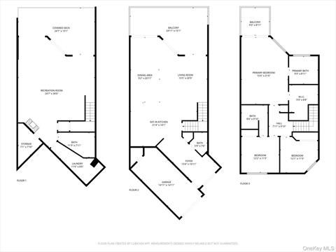
Living Room Bedroom Living Room Living Room Living Room Bathroom Sitting Room Bedroom Kitchen Kitchen Kitchen Dining Area Living Room Bathroom Balcony Deck Bedroom Bedroom Bathroom Bathroom Bathroom Other Bedroom Bathroom Bathroom Bathroom Bedroom Basement Basement Basement Basement Deck Patio Bathroom Aerial View Aerial View Floor Plan Floor Plan Floor Plan Floor Plan Bathroom Aerial View Aerial View Floor Plan Floor Plan
 

Details ML#: 912824  

  • Year Built: 2003
  • Taxes: $4,775
  • Status:Active

Upcoming Open House:

Date:  10/12/2025 - 10/12/2025 01:00 PM - 04:00 PM
Address:  282 Tamerisk Lane, New Windsor, NY, 12553

Open House Note: 

Description

Stunning Hudson River Retreat at Plum Point on HudsonExperience the ultimate in luxury living with this extraordinary 3-level home offering unrivaled Hudson River views from every floor. With over 3, 100 sq ft of impeccably designed interior space plus 800 sq ft of expansive decks, this residence was crafted with a custom-designed floor plan, high-end moldings throughout, and walls of windows that flood each level with natural light.Wake up to awe-inspiring sunrises and sweeping vistas of the Hudson River, Bannerman’s Castle, and rolling mountain landscapes. Sliding glass doors open to private decks on every level—perfect for entertaining, relaxing, or simply soaking in the view.The private primary suite is a true retreat with spa-like bath, walk-in closet, cathedral ceilings, skylights, and its very own direct deck access with stunning views of the Hudson River. A second bedroom suite features a private bath with steam shower, while a third bedroom is ideal for guests room or a home office. The versatile lower level offers space for an in-law suite, media room, or studio, with direct walkout access to landscaped grounds and more stunning views.Additional highlights include surround sound, oversized garage with abundant storage, and access to resort-style community amenities: fitness center, pool, tennis and pickleball courts, basketball, library, and party room.Just minutes from the charming village of Cornwall-on-Hudson, enjoy easy access to the Ferry to Beacon/NYC train, marinas, riverfront boardwalks, and acclaimed dining.This is more than a home—it’s a lifestyle. Schedule your private tour today and discover Hudson Valley living at its finest.

More Property Details

Animals Policy: Yes

Room Information

Bedroom: 3   Full Bath: 3   Half Bath: 1   Other: 3  

Property Features

ConstructionMaterials: Balcony, Private Entrance, Tennis Court(s)   Lot Size: 0.1399   Lot Sq Ft: 6093   Approx. Int. Sq. Ft.: 3102.00   Garage: Yes   Garage: 1.0   Parking Spaces: Yes   Parking Spaces: 6   Parking Facilities: Common, Driveway, Garage   Deck: Yes   Porch Description: Yes   Existing Structures: InGround Pool Tennis Court    Pets: Yes   Waterfront Desc: River Front  

Appliances & Utilities

Heat: Baseboard, Hot Water   A/C: Central Air   Water: Public   Sewer: Public Sewer  

Financial

Taxes: $4,775  

Local Area Information

School District#: 1   School District: Newburgh   Block: 5   Lot: 5.2  

Listing Information provided courtesy of Keller Williams Realty  845-928-8000
Inquire About This Property

(*) - Required fields

  1. Presented by

    Gold Coast Homes & Estates
    • Gold Coast Homes & Estates
    • Licensed Real Estate Broker
    • (631) 283-1000
    •   Contact Us
OneKey™ MLSThe source of the displayed data is either the property owner or public record provided by non-governmental third parties. It is believed to be reliable but not guaranteed. Information Copyright 2020, OneKey™ MLS
© 2025 Gold Coast Homes & Estates. All rights reserved | Login | DMCA Notice | Search Engine powered by eRealtyMedia.com