Properties 8778 of 28449 results« Previous property   Next property »
2573 Atlantic Avenue Brooklyn, NY 11207
$888,888 $875,000
  • Commercial
  • PRICE REDUCED
  • Year Built 1905
  • Mixed Use
  • ML# 841363

Property Details

Overview

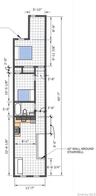
This mixed-use property offers an ideal live/work space. It has been Fully gut renovated in 2020 with all systems updated. The spacious duplexed studio, spanning approximately 1, 400 sq. ft., includes a kitchenette, bathroom, and access to a full basement which is included with the unit. This unit is currently rented for $2, 500 per month with a short term 6-month lease and then month to month afterwards. The second-floor unit, approximately 750 sq. ft., features a well-appointed kitchen, a bright living room, two bedrooms, and a full bathroom. The apartment boasts gorgeous wood floors, three skylights that flood the space with natural light, and access to a private deck and rooftop space. The Current tenants pay $2, 500 per month and have a month-to-month lease. The storefront, basement, and back patio offer dual income. This property incurs low expenses with tenants paying all utilities and heat. The owner pays minimal gas, water, real estate taxes and insurance. With an approx. NOI of $50, 600, based on CAP rates in the area this property offers a higher return compared to similar properties. Both units are equipped with mini-split systems for efficient heating and cooling, ensuring year-round comfort. This property has been thoughtfully renovated with all-new wiring, plumbing, and mini-split systems. Additionally, it is upgraded with 3-phase power and 200A service, offering optimal electrical capacity for modern needs.Please note, in order to view the 2nd floor on the video walk through: When the video starts, it shows the studio facing the kitchen and bathroom area. To access the second floor, you’ll need to turn the view around to face the opposite door. There, you’ll see a circle with an arrow. Hover over it, and an option to go upstairs will appear. Once you click this, it will take you to the second floor.

Key Facts

  • Lot Size: 0.0237
  • Lot Sq Ft: 1032
  • Taxes: $2,912
  • Sale or Rent: Sale
  • Zoning: M1-1

Additional Features

  • Construction Materials: Stone
  • Parking Facilities: None
  • Stories: 2

Interior & Utilities

  • Heat: Electric
  • A/C: Electric
  • Water: Public
  • Sewer: Public Sewer

Financial

  • Taxes: $2,912
Listing Information provided courtesy of Crifasi Real Estate Inc  718-821-5999
OneKey™ MLSThe source of the displayed data is either the property owner or public record provided by non-governmental third parties. It is believed to be reliable but not guaranteed. Information Copyright 2020, OneKey™ MLS